When it comes to installing or replacing your water heater, one detail often overlooked is its height from the floor. You might wonder, “Does the height really matter?” The truth is, the right height can impact safety, efficiency, and even how easily you can maintain your heater.
You’ll discover the ideal water heater height from the floor and why getting it right can save you time, money, and headaches down the road. Keep reading to make sure your water heater is set up perfectly for your home.

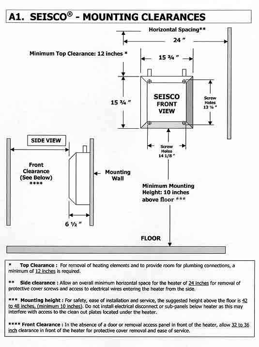
Credit: catalog.waterheatersales.com
Recommended Water Heater Heights
Choosing the right height for your water heater is important. It affects safety, efficiency, and ease of maintenance. Understanding the recommended water heater heights helps you install it properly.
Proper height ensures easy access to valves and controls. It also keeps the unit safe from damage and flooding. Follow these guidelines to keep your water heater working well for years.
Standard Height Guidelines
Most water heaters sit 18 inches above the floor. This height protects the heater from minor flooding. It also meets many local building codes and safety rules.
For electric water heaters, the height is usually flexible. Gas models often need extra clearance for the pilot light. Check local codes to confirm the exact height needed.
Variations For Different Models
Tankless water heaters mount higher on the wall. This saves floor space and improves water flow. Heights can range from 48 to 60 inches above the floor.
Heat pump water heaters may require more space below. This helps with airflow and maintenance access. Some models also need a drain pan, affecting height placement.
Always review the manufacturer’s instructions. They provide specific height recommendations for each model. This ensures safe and efficient water heater operation.
Safety Codes And Regulations
Water heater installation must follow specific safety codes and rules. These rules keep homes safe and prevent accidents. Knowing these rules helps ensure your water heater is placed correctly. Safety codes cover height, space, and other important factors. Understanding these rules protects your family and your property.
Local Building Codes
Local building codes set the minimum height for water heaters. These codes vary by city or state. They ensure the heater is installed safely and works well. Inspectors check installations for code compliance. Installing too low or too high can cause problems. Always check your local code before installation.
Fire Safety Requirements
Water heaters must follow fire safety rules. These rules require a safe distance from flammable materials. Proper height helps reduce fire risks. Fire safety codes also cover ventilation and clearance. Correct installation can prevent heat damage or fire. Ignoring these rules can lead to fines or hazards.
Accessibility Standards
Accessibility rules ensure safe and easy access to water heaters. Technicians need space to service or repair units. Height must allow for safe operation and maintenance. Accessibility standards help avoid accidents during repairs. These rules improve safety for everyone involved.
Installation Tips For Optimal Height
Setting the right height for your water heater is key for safety and easy use. Proper height helps with maintenance, prevents damage, and follows building rules. This section gives simple tips for placing your water heater at the best height.
Measuring From Floor To Heater Base
Start by measuring from the floor to the bottom of the water heater. Use a tape measure for accuracy. The heater base should be at least 18 inches above the floor. This height protects the heater from water damage and allows air circulation. Mark the spot clearly before installation.
Positioning For Maintenance Access
Leave enough space around the heater for repairs and checks. A good rule is to have at least 24 inches of clearance in front. This space lets a technician work comfortably. Avoid tight corners or crowded spots that block access. Easy access saves time and cost during maintenance.
Avoiding Common Installation Errors
Do not place the heater too low or too high. Too low risks water damage; too high makes maintenance hard. Avoid installing near flammable materials or in damp areas. Make sure the heater is level to prevent leaks. Always follow local safety codes and manufacturer instructions.
Height Considerations For Different Spaces
Choosing the right height for your water heater depends on the space where it sits. Different rooms have different rules and needs. Setting the correct height helps with safety, maintenance, and efficiency.
Each space has unique factors like moisture, clearance, and local codes. Knowing these details guides you to install your water heater correctly.
Basements And Crawl Spaces
Basements and crawl spaces often have limited height and moisture issues. Elevate the water heater at least 18 inches above the floor. This keeps it safe from flooding. It also prevents rust and damage from dampness.
Check local codes for exact height rules. Make sure there is enough clearance around the heater for servicing. Proper ventilation is important to avoid moisture buildup in these areas.
Garages
Garages require the water heater to be raised to prevent fire hazards. Most codes say 18 inches above the floor is best. This height protects the heater from gasoline vapors and other flammable liquids.
Keep the heater away from car exhaust and chemicals. Make sure there is room around the heater for easy access. A raised heater also avoids dust and dirt from garage floors.
Living Areas
Living areas like basements finished as rooms need special care. The water heater should be installed with soundproofing to reduce noise. It must also meet building codes for safety and ventilation.
Height depends on room design, but allow space for maintenance. Cover the heater with a cabinet or enclosure if needed. This keeps the room looking neat while allowing easy access.
Impact Of Height On Performance And Safety
The height of a water heater from the floor affects how well it works and how safe it is. Placing the heater at the right height helps it run smoothly. It also lowers the chance of problems that could cause damage or danger. Understanding these impacts helps you keep your water heater safe and efficient.
Drainage And Pressure Issues
Height affects how water flows in and out of the heater. Too low, and water may not drain properly. This can cause pressure to build up inside. Too high, and water pressure might drop, reducing hot water flow. Proper height keeps water moving well and stops pressure problems.
Risk Of Water Damage
Water heaters placed too close to the floor risk water damage. Leaks can soak floors, walls, and nearby items. Raising the heater prevents water from spreading quickly. This helps protect your home from costly repairs and keeps the area dry and safe.
Heat Distribution
The height also affects how heat spreads through your home. A heater too low may lose heat to the floor. A better height helps warm water flow evenly. This makes hot water available faster and keeps the temperature steady.

Credit: www.liftingitalia.com
Tools And Materials For Installation
Installing a water heater at the right height requires specific tools and materials. Proper preparation ensures a safe and secure setup. These tools help measure, mount, and protect during installation. Understanding each item simplifies the process and avoids mistakes.
Measuring Devices
Accurate measurement is critical for water heater height from floor. Use a tape measure to check distances precisely. A level helps keep the heater straight and balanced. A pencil or marker marks the wall for mounting points. These tools ensure the water heater fits properly and functions well.
Mounting Hardware
Strong mounting hardware holds the water heater securely. Anchors and screws must fit the wall type. Brackets support the heater’s weight and prevent movement. Using the correct hardware avoids damage and keeps the heater stable. Quality materials improve safety and durability.
Safety Equipment
Safety equipment protects you during installation. Wear gloves to avoid cuts and burns. Safety glasses shield your eyes from debris. A sturdy ladder provides access to high spots. Proper safety gear reduces risk and keeps the work area secure.
Common Mistakes And How To Avoid Them
Installing a water heater at the right height is important. Many people make mistakes that cause problems later. These errors can lead to safety risks, poor performance, and higher repair costs. Knowing common mistakes helps avoid them. Follow clear steps to place your water heater safely and correctly.
Incorrect Height Placement
Placing the water heater too low or too high causes issues. If it sits too low, water damage may happen during leaks. Too high placement makes maintenance hard and unsafe. Choose a height that allows easy access for repairs. Keep enough space below for proper drainage and safety.
Ignoring Manufacturer Instructions
Manufacturers provide clear height guidelines. Ignoring these can void warranties or cause hazards. Always read and follow the instructions carefully. They explain the best height for safety and efficiency. Not following these rules risks damage and higher energy use.
Overlooking Local Regulations
Local building codes set rules for water heater installation. These rules include minimum and maximum height limits. Overlooking regulations can lead to fines and unsafe setups. Check with local authorities before installation. Follow all rules to ensure safety and legal compliance.

Credit: www.tmedia.cl
Frequently Asked Questions
What Is The Ideal Water Heater Height From Floor?
The ideal water heater height is typically 18 inches from the floor. This height prevents fire hazards and ensures safety. Local codes may vary, so always check regulations before installation.
Why Should A Water Heater Be Elevated From Floor?
Elevating the water heater protects it from water damage and corrosion. It also helps prevent ignition of flammable vapors near the base. Proper height ensures compliance with safety codes and improves appliance longevity.
How To Measure Water Heater Height From Floor?
Measure from the floor surface to the bottom of the water heater tank. Use a tape measure to confirm it meets the minimum required height, usually 18 inches or as per local codes.
Does Water Heater Height Affect Performance?
Water heater height does not impact its heating performance. However, proper height ensures safety and code compliance. It helps avoid hazards and prolongs the unit’s lifespan.
Conclusion
Setting the right water heater height keeps your home safe and efficient. Place it high enough to avoid water damage and easy access for repairs. Follow local rules to meet safety standards and prevent problems. Proper height helps your heater work well and last longer.
A simple step that saves money and trouble later. Think about space, safety, and convenience when installing. Good planning makes a big difference in your home’s comfort.



